
 Kontakt

 Profil

 Referenzen

 Projekte

 Wettbewerbe

 Ökonomie

|
 |

Wohnungsbau
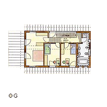
Neubauvorhaben eines Wohnhauses " Low budget"
Daten:WFL=72 m², BRI=250,0 m³, BGF=81,0
m²
Ausstattung: Das
2. vollgeschossige Gebäude mit den geringen Aussenmaßen
4,50 x .9.0 m ist nicht nur ein "Platzwunder", sondern
befindet sich auch in dem Bereich des " low budget"
Kostenniveaus. Das Holzhaus ist als Rahmenbauweise mit einem
Betonfundament konzeptioniert. Die Raumhöhen von 2,50
m und die Wandstärke von 26, 0 cm lassen keinen Kompromis
zu. Technologie: Die kostengünstige
Bauweise kann durch eine Wärmepumpe und evtl. mit Solarkolektoren
auf dem Flachdach ergänzt werden. Durch ein Rückhaltebecken
zur Regenwassernutzung ist das Gebäude nach neuen, technologischen
Ausstattungsstandard, ausgelegt.

|